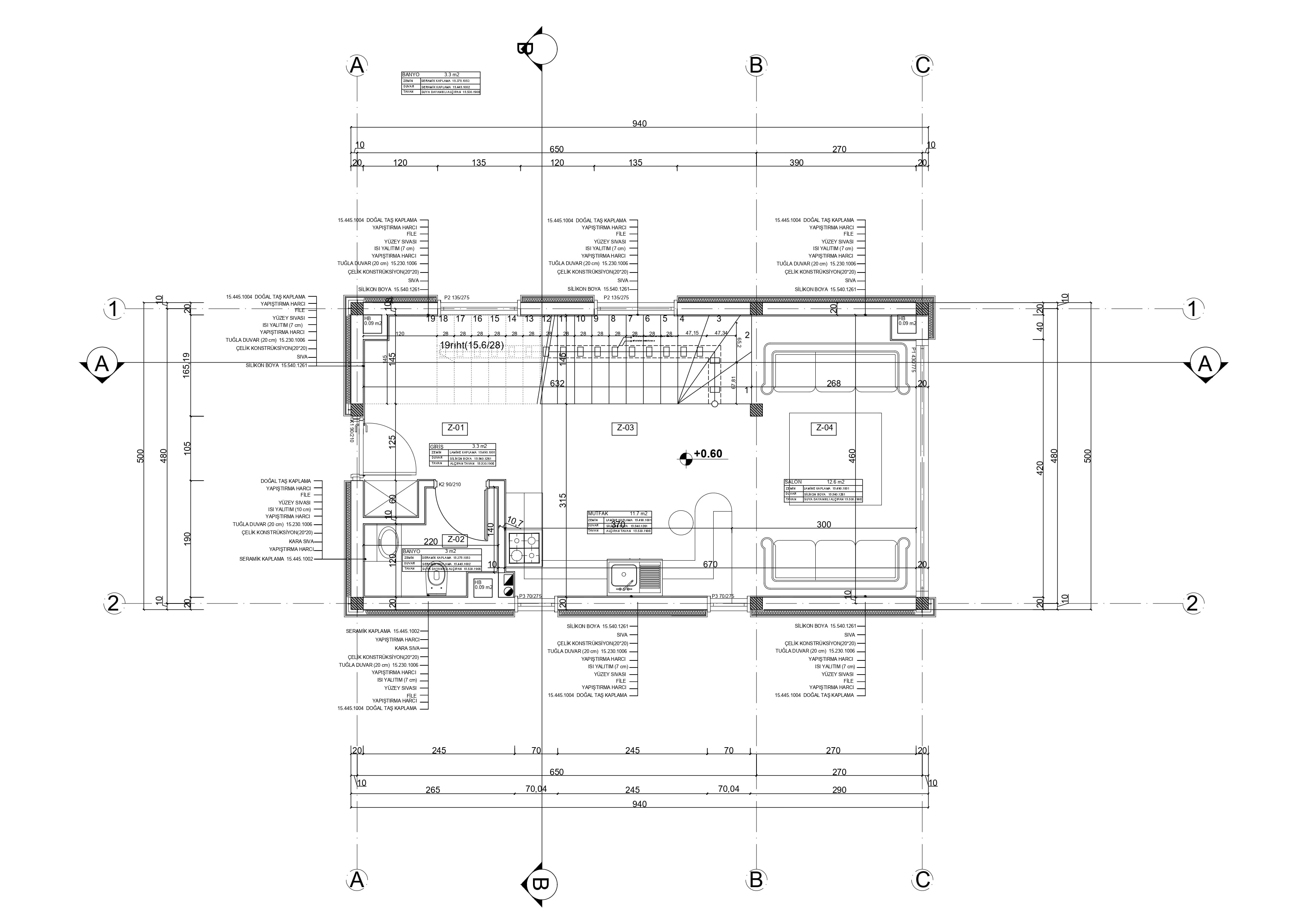
Karacaoğlan Villası müşterimizin bize özel olarak villa tasarımı yaptırmak istemesiyle başlayan kapsamlı bir projedir.
Bu süreçte belediye ruhsat projeleri hazırlanmış, mimari modelleme ve konsept geliştirme çalışmaları tamamlanmıştır.
Müşterimizin beklentilerine uygun olarak villanın tasarım ve planlamasını üstlendik; aynı zamanda uygulama sürecini de yürütüyoruz.





Sizinle çalışmaktan büyük mutluluk duyarız. Danışmanlık ve projelerinizle ilgili görüşmek için lütfen bizimle iletişime geçin.
İletişim Sayfası